Description
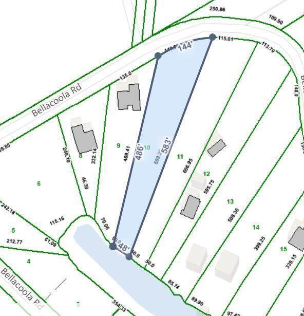
Last Lot in lake-front Harbor Haven now available. Already approved for at least a 3 Bedroom Home or more. 100' by 100' space already cleared for a home Survey in on-line documents. Below is a link to the TVA map for zoning for dock permits. It confirms the initial approval for a dock up to 1800 square feet and does not have to meet the 50' setback requirement from neighbors property. Application Instructions: https://www.tva.com/environment/shoreline-construction-permits/application-instructions new owner needs to re-apply after closing
-
0BEDS
-
0.97ACRES
-
0BATHS
-
01/2 BATHS
School Information
Description
Last Lot in lake-front Harbor Haven now available. Already approved for at least a 3 Bedroom Home or more. 100' by 100' space already cleared for a home Survey in on-line documents. Below is a link to the TVA map for zoning for dock permits. It confirms the initial approval for a dock up to 1800 square feet and does not have to meet the 50' setback requirement from neighbors property. Application Instructions: https://www.tva.com/environment/shoreline-construction-permits/application-instructions new owner needs to re-apply after closing
Related Properties
13316 Bellacoola Road Soddy Daisy, TN 37379
Property Description
Exterior Features [] Fencing [] Lot Features Pie Shaped LotSlopedWill Not Divide Other Structures None View Water View YN Yes Waterfront Features [] Waterfront YN Yes
Additional Parcels YN No Association Amenities [] Association YN2 No Auction YN2 No Community Features [] Listing Terms CashConventional Other Equipment [] Property Sub Type Unimproved Land Security Features [] Senior Community YN No Sewer See Remarks Special Listing Conditions Investor Tax Annual Amount 838.99 Utilities Cable AvailableElectricity AvailableWater Available Water Source Public

Listing information © 2026 The Multiple Listing Service of Chattanooga, Inc.
Listing courtesy of Keller Williams Realty: 423-664-1900.