Description
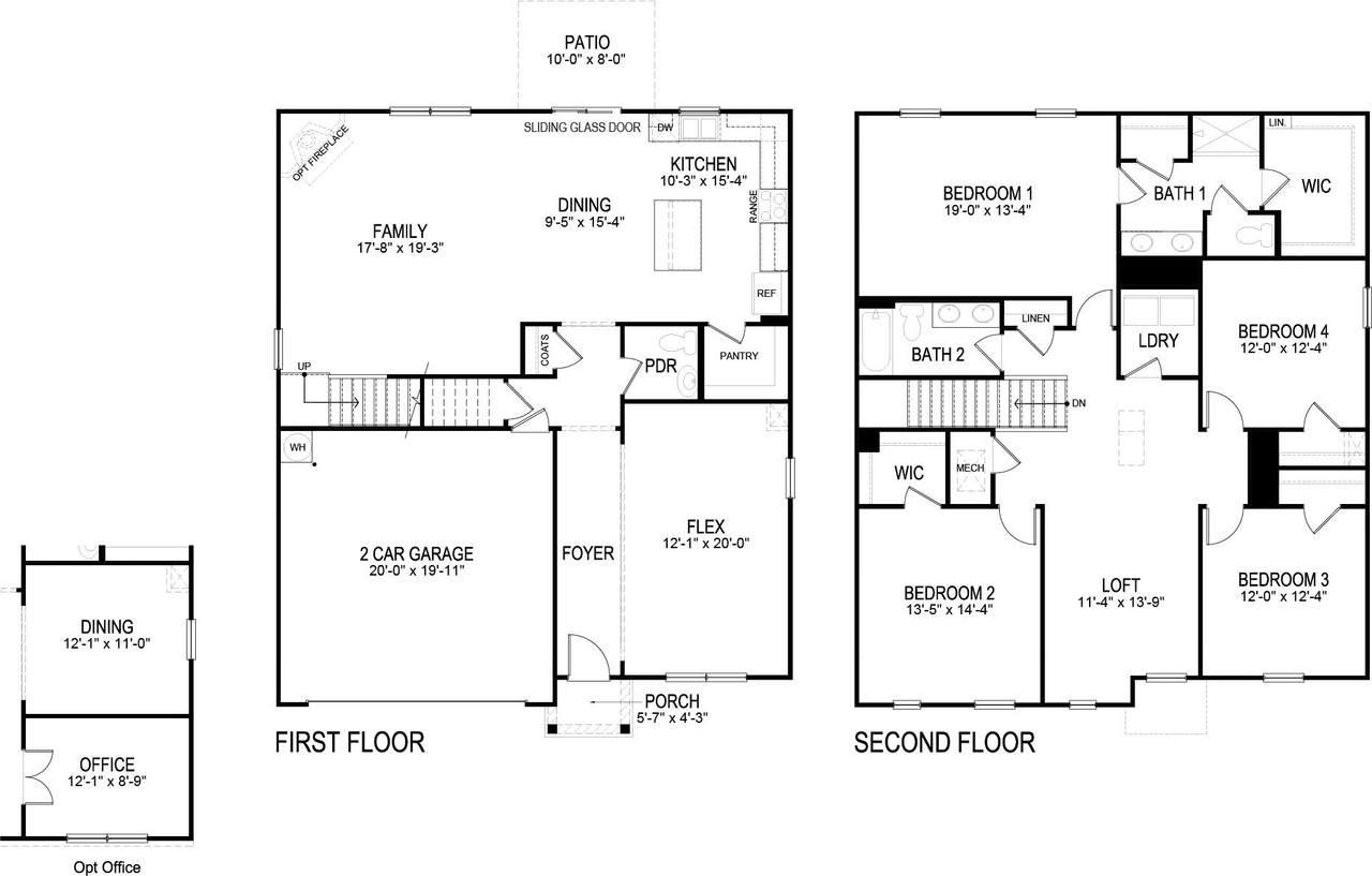
The Hanover floorplan available at Fairview Hills in is one of our most popular floorplans. The foyer opens into an open concept main level. A large kitchen with a pantry and island with countertop seating overlooks a dining and living area. The downstairs also features a half bathroom and a flex room that could be used as a formal dining space or an office. Upstairs is a loft which provides extra space for work and play. The primary bedroom has a private bathroom and walk-in closet. Three additional bedrooms share a comfortable bathroom. There is also a laundry room upstairs for convenience. This floorplan is designed for any stage of life.
-
4BEDS
-
0.19ACRES
-
2BATHS
-
11/2 BATHS
-
2,804SQFT
-
$143$/SQFT
School Information
Description
The Hanover floorplan available at Fairview Hills in is one of our most popular floorplans. The foyer opens into an open concept main level. A large kitchen with a pantry and island with countertop seating overlooks a dining and living area. The downstairs also features a half bathroom and a flex room that could be used as a formal dining space or an office. Upstairs is a loft which provides extra space for work and play. The primary bedroom has a private bathroom and walk-in closet. Three additional bedrooms share a comfortable bathroom. There is also a laundry room upstairs for convenience. This floorplan is designed for any stage of life.
2272 Chelle Drive Ne Cleveland, TN 37323
Property Description
Architectural Style Contemporary Attached Garage YN Yes Carport YN No Construction Materials HardiPlank Type Exterior Features Rain GuttersSmart Lock(s) Fencing [] Foundation Details Slab Garage YN Yes Lot Features Front YardLevel Other Structures [] Parking Features DrivewayGarageGarage Door Opener Patio And Porch Features Patio Pool Features [] Roof AsphaltShingle Roof Asphalt Yes Roof Shingle Yes Structure Type House View [] View YN No Waterfront Features [] Waterfront YN No
Accessibility Features [] Appliances RefrigeratorMicrowaveElectric Water HeaterElectric RangeDisposalDishwasher Basement [] Basement YN No Building Area Total 2804 Cooling Central AirElectric Cooling YN Yes Fireplace Features [] Fireplace YN Yes Flooring CarpetLaminateVinyl Heating CentralElectric Heating YN Yes Interior Features Double VanityGranite CountersPantrySeparate ShowerTub/shower ComboWalk-In Closet(s) Laundry Features Electric Dryer HookupLaundry RoomWasher Hookup Levels Two Rooms Office (First Level) Dining Room (First Level) Kitchen (First Level) Great Room (First Level) Bedroom (First Level) Bedroom (Second Level) Bedroom (Second Level) Bedroom (Second Level) Primary Bedroom (Second Level) Loft (Second Level) Window Features []
Additional Parcels YN No Association Amenities [] Association Fee 400 Association Fee Frequency Annually Association YN2 Yes Auction YN2 No Community Features [] Grazing Permits BLMYN Yes Grazing Permits Private YN No Green Energy Efficient [] Green Energy Generation [] Green Sustainability [] Green Water Conservation [] Listing Terms CashConventionalFHAVA Loan New Construction YN Yes Other Equipment [] Property Sub Type Single Family Residence Security Features Smoke Detector(s) Senior Community YN No Sewer Public Sewer Special Listing Conditions [] Tax Annual Amount 1419.43 Utilities Cable AvailableElectricity ConnectedPhone AvailableSewer ConnectedWater ConnectedUnderground Utilities Utilities Sewer Connected Yes Utilities Underground Utilities Yes Water Source Public

Listing information © 2026 The Multiple Listing Service of Chattanooga, Inc.
Listing courtesy of DHI Inc: 865-338-5674.