Description
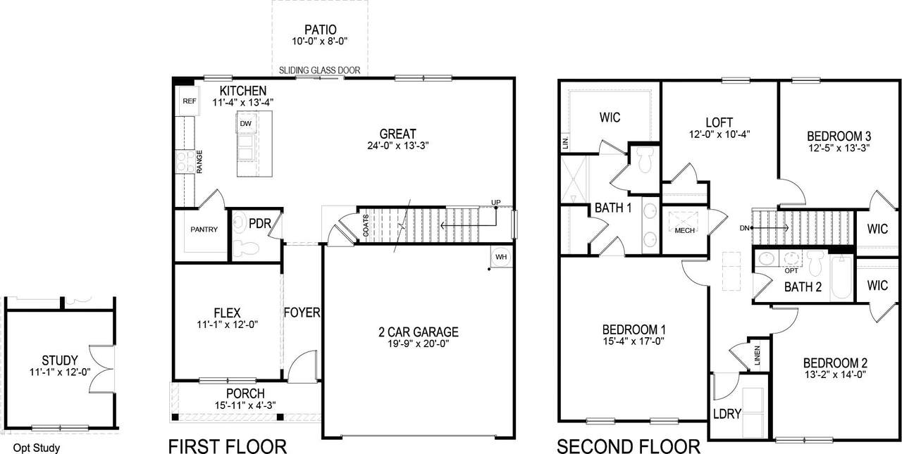
Welcome to the Penwell floorplan in Hawk's Ridge in Rossville, GA. This stunning open concept two-story home features a design that is sure to fit all stages of life. The foyer opens into an eat-in kitchen and living area. The kitchen offers a large pantry, plenty of cabinet space, and an island with countertop seating. The first floor also includes a powder room for convenience, and a flex room that could serve as an office or formal dining room. Upstairs is a loft that can accommodate work and play. The primary bedroom features a spacious walk-in closet and private bathroom. Two additional secondary bedrooms share a full bathroom. The laundry room is located on the second floor. Express Series features include 8ft Ceilings on first floor, Shaker style cabinetry, Solid Surface Countertops with 4in backsplash, Stainless Steel appliances by Whirlpool, Moen Chrome plumbing fixtures with Anti-scald shower valves, Mohawk flooring, LED lighting throughout, Concrete rear patio (may vary per plan), & our Home Is Connected Smart Home Package. Seller offering closing cost assistance to qualified buyers. Builder warranty included. See agent for details. Due to variations amongst computer monitors, actual colors may vary. Pictures, photographs, colors, features, and sizes are for illustration purposes only and will vary from the homes as built. Photos may include digital staging. Square footage and dimensions are approximate. Buyer should conduct his or her own investigation of the present and future availability of school districts and school assignments. *Taxes are estimated. Buyer to verify all information.
-
3BEDS
-
0.14ACRES
-
2BATHS
-
11/2 BATHS
-
2,164SQFT
-
$0$/SQFT
School Information
Description
Welcome to the Penwell floorplan in Hawk's Ridge in Rossville, GA. This stunning open concept two-story home features a design that is sure to fit all stages of life. The foyer opens into an eat-in kitchen and living area. The kitchen offers a large pantry, plenty of cabinet space, and an island with countertop seating. The first floor also includes a powder room for convenience, and a flex room that could serve as an office or formal dining room. Upstairs is a loft that can accommodate work and play. The primary bedroom features a spacious walk-in closet and private bathroom. Two additional secondary bedrooms share a full bathroom. The laundry room is located on the second floor. Express Series features include 8ft Ceilings on first floor, Shaker style cabinetry, Solid Surface Countertops with 4in backsplash, Stainless Steel appliances by Whirlpool, Moen Chrome plumbing fixtures with Anti-scald shower valves, Mohawk flooring, LED lighting throughout, Concrete rear patio (may vary per plan), & our Home Is Connected Smart Home Package. Seller offering closing cost assistance to qualified buyers. Builder warranty included. See agent for details. Due to variations amongst computer monitors, actual colors may vary. Pictures, photographs, colors, features, and sizes are for illustration purposes only and will vary from the homes as built. Photos may include digital staging. Square footage and dimensions are approximate. Buyer should conduct his or her own investigation of the present and future availability of school districts and school assignments. *Taxes are estimated. Buyer to verify all information.
Related Properties
277 Draft Street Rossville, GA 30741
Property Description
Architectural Style Contemporary Attached Garage YN Yes Carport YN No Construction Materials BrickVinyl SidingOther Exterior Features Rain GuttersSmart Lock(s)Other Fencing [] Foundation Details Slab Garage YN Yes Lot Features Back YardFront YardLevel Other Structures [] Parking Features DrivewayGarageGarage Door OpenerKitchen Level Patio And Porch Features PatioPorchPorch - Covered Pool Features [] Roof Shingle Roof Shingle Yes Structure Type House View [] View YN No Waterfront Features [] Waterfront YN No
Accessibility Features [] Appliances Tankless Water HeaterRefrigeratorMicrowaveGas Water HeaterElectric RangeDisposalDishwasher Basement [] Basement YN No Building Area Total 2164 Cooling Central Air Cooling YN Yes Fireplace Features [] Fireplace YN No Flooring CarpetLaminateVinyl Heating CentralNatural Gas Heating YN Yes Interior Features Breakfast BarDouble VanityEn SuiteEntrance FoyerGranite CountersKitchen IslandLow Flow Plumbing FixturesOpen FloorplanPantryPlumbedSmart HomeSmart ThermostatTub/shower ComboWalk-In Closet(s) Laundry Features Electric Dryer HookupLaundry RoomWasher Hookup Levels Two Rooms Office (First Level) Great Room (First Level) Kitchen (First Level) Primary Bedroom (Second Level) Bedroom (Second Level) Bedroom (Second Level) Loft (Second Level) Window Features Double Pane WindowsInsulated WindowsLow-Emissivity WindowsVinyl FramesWindow Treatments
Additional Parcels YN No Association Amenities Other Association Fee 350 Association Fee Frequency Annually Association YN2 Yes Auction YN2 No Community Features Other Grazing Permits BLMYN Yes Grazing Permits Private YN No Green Energy Efficient [] Green Energy Generation [] Green Sustainability [] Green Water Conservation [] Listing Terms CashConventionalFHAVA Loan New Construction YN Yes Other Equipment [] Property Sub Type Single Family Residence Security Features Smoke Detector(s) Senior Community YN No Sewer Public Sewer Special Listing Conditions [] Tax Annual Amount 1896.95 Utilities Cable AvailableElectricity ConnectedNatural Gas ConnectedPhone AvailableSewer ConnectedWater ConnectedUnderground Utilities Utilities Sewer Connected Yes Utilities Underground Utilities Yes Water Source Public

Listing information © 2026 The Multiple Listing Service of Chattanooga, Inc.
Listing courtesy of D R Horton Realty of Georgia: 678-509-0555.