Description
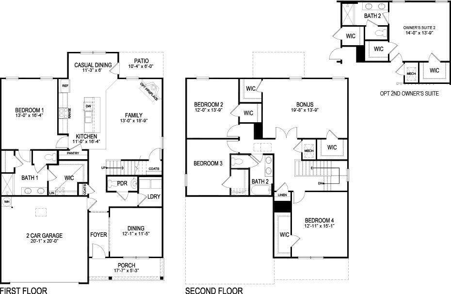
Welcome to the Salem floorplan at Lone Oaks Farm in Cleveland. This is one of our more popular floorplans where the main floor features a formal dining, laundry, and powder room. The kitchen and living areas are open concept. The kitchen also features a breakfast nook, pantry, and an island with countertop seating. The breakfast nook overlooks a patio. This space is perfect for entertaining. Additionally, the primary bedroom is on the main floor. It features a walk-in closet and a private bathroom. Upstairs are three additional bedrooms with walk-in closets. The bedrooms share a full bathroom. There is also a spacious bonus room, providing you with more space to work or play. This home offers 9ft Ceilings on first floor, Shaker style cabinetry, Solid Surface Countertops with 4in backsplash, Stainless Steel appliances by Whirlpool, Moen Chrome plumbing fixtures with Anti-scald shower valves, Mohawk flooring, LED lighting throughout, Architectural Shingles, Concrete rear patio (may vary per plan), & our Home Is Connected Smart Home Package. Seller offering closing cost assistance to qualified buyers. Builder warranty included. See agent for details. Due to variations amongst computer monitors, actual colors may vary. Pictures, photographs, colors, features, and sizes are for illustration purposes only and will vary from the homes as built. Photos may include digital staging. Square footage and dimensions are approximate. Buyer should conduct his or her own investigation of the present and future availability of school districts and school assignments. *Taxes are estimated. Buyer to verify all information.
-
4BEDS
-
0.18ACRES
-
2BATHS
-
11/2 BATHS
-
2,618SQFT
-
$148$/SQFT
School Information
Description
Welcome to the Salem floorplan at Lone Oaks Farm in Cleveland. This is one of our more popular floorplans where the main floor features a formal dining, laundry, and powder room. The kitchen and living areas are open concept. The kitchen also features a breakfast nook, pantry, and an island with countertop seating. The breakfast nook overlooks a patio. This space is perfect for entertaining. Additionally, the primary bedroom is on the main floor. It features a walk-in closet and a private bathroom. Upstairs are three additional bedrooms with walk-in closets. The bedrooms share a full bathroom. There is also a spacious bonus room, providing you with more space to work or play. This home offers 9ft Ceilings on first floor, Shaker style cabinetry, Solid Surface Countertops with 4in backsplash, Stainless Steel appliances by Whirlpool, Moen Chrome plumbing fixtures with Anti-scald shower valves, Mohawk flooring, LED lighting throughout, Architectural Shingles, Concrete rear patio (may vary per plan), & our Home Is Connected Smart Home Package. Seller offering closing cost assistance to qualified buyers. Builder warranty included. See agent for details. Due to variations amongst computer monitors, actual colors may vary. Pictures, photographs, colors, features, and sizes are for illustration purposes only and will vary from the homes as built. Photos may include digital staging. Square footage and dimensions are approximate. Buyer should conduct his or her own investigation of the present and future availability of school districts and school assignments. *Taxes are estimated. Buyer to verify all information.
Related Properties
4305 Scenic Meadows Drive Ne Cleveland, TN 37323
Property Description
Architectural Style Contemporary Attached Garage YN Yes Carport YN No Construction Materials BrickStoneVinyl Siding Exterior Features Rain GuttersSmart Light(s)Smart Lock(s) Fencing [] Foundation Details Slab Garage YN Yes Lot Features LevelSplit Possible Other Structures [] Parking Features Garage Door OpenerKitchen Level Patio And Porch Features DeckPatioPorchPorch - Covered Pool Features [] Roof Shingle Roof Shingle Yes Structure Type Free Standing Building View [] View YN No Waterfront Features [] Waterfront YN No
Accessibility Features [] Appliances RefrigeratorMicrowaveFree-Standing Electric RangeElectric Water HeaterDisposalDishwasher Basement [] Basement YN No Building Area Total 2618 Cooling Central AirElectric Cooling YN Yes Fireplace Features [] Fireplace YN No Flooring CarpetVinyl Heating CentralElectric Heating YN Yes Interior Features Breakfast NookDouble VanityEn SuiteGranite CountersHigh CeilingsIn-Law FloorplanPantryPrimary DownstairsSeparate Dining RoomTub/shower ComboWalk-In Closet(s) Laundry Features Electric Dryer HookupGas Dryer HookupLaundry RoomWasher Hookup Levels Two Rooms Dining Room (First Level) Dining Room (First Level) Family Room (First Level) Primary Bedroom (First Level) Bedroom (Second Level) Bedroom (Second Level) Bedroom (Second Level) Bedroom (Second Level) Other Window Features Insulated WindowsVinyl FramesWindow Treatments
Additional Parcels YN No Association Amenities [] Association Fee 350 Association Fee Frequency Annually Association YN2 Yes Auction YN2 No Community Features [] Grazing Permits BLMYN Yes Grazing Permits Private YN No Green Energy Efficient [] Green Energy Generation [] Green Sustainability [] Green Water Conservation [] Listing Terms CashConventionalFHAVA Loan New Construction YN Yes Other Equipment [] Property Sub Type Single Family Residence Security Features Smoke Detector(s) Senior Community YN No Sewer Public Sewer Special Listing Conditions [] Structure Type Free Standing Building Yes Tax Annual Amount 1415.83 Utilities Cable AvailableElectricity AvailablePhone AvailableSewer ConnectedUnderground Utilities Utilities Sewer Connected Yes Utilities Underground Utilities Yes Water Source Public

Listing information © 2025 The Multiple Listing Service of Chattanooga, Inc.
Listing courtesy of DHI Inc: 865-338-5674.