Description
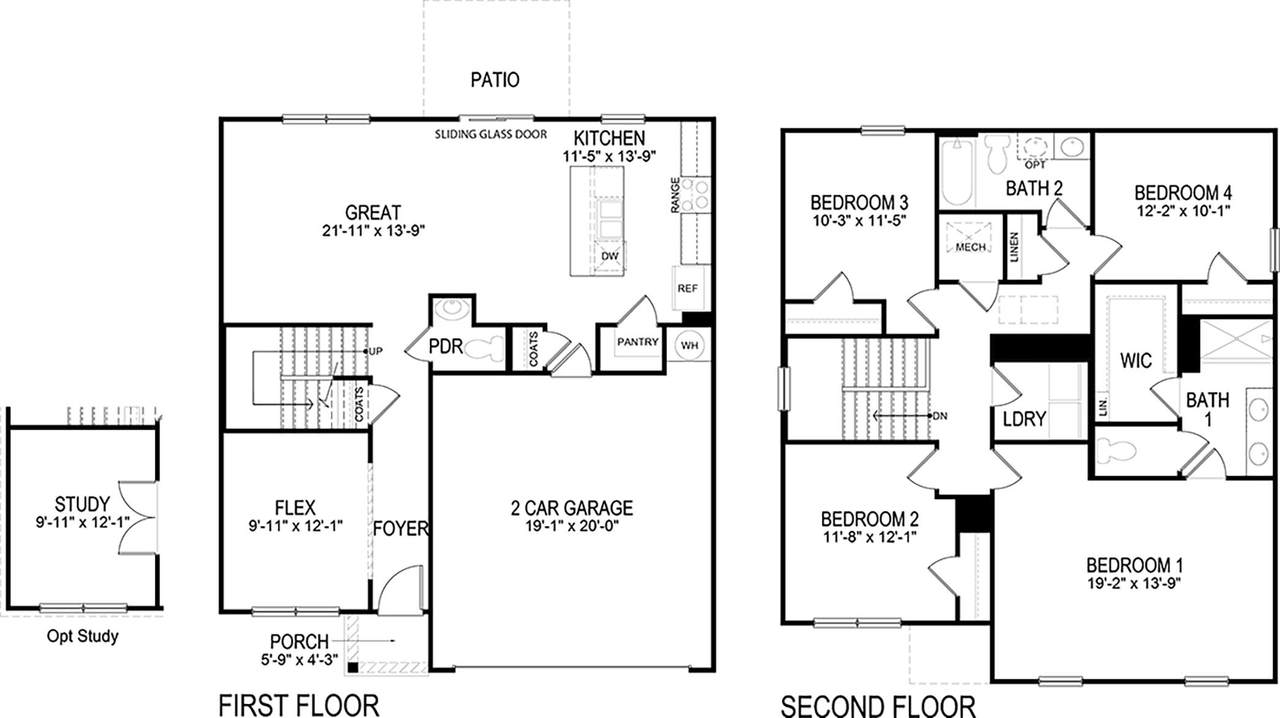
Welcome to the Belhaven at Lone Oaks Farm in Cleveland. This two-story plan features a gracious primary bedroom upstairs with a walk-in-closet and spacious bathroom. The second level also features three secondary bedrooms with an additional bathroom. Enjoy the convenience of having washer and dryer hookups upstairs. The main level has a flex room that could be used as a study or designated formal dining area as well as a powder room located directly off the foyer. This floorplan offers open concept living, with the expansive great room looking over the modern kitchen. Windows and doors at the back of the home bathe the kitchen area in natural sunlight. The kitchen is an entertainer's dream with a sleek island that features countertop seating. It also features a spacious pantry with plenty of room for grocery items. This home offers 9ft Ceilings on first floor, Shaker style cabinetry, Solid Surface Countertops with 4in backsplash, Stainless Steel appliances by Whirlpool, Moen Chrome plumbing fixtures with Anti-scald shower valves, Mohawk flooring, LED lighting throughout, Architectural Shingles, Concrete rear patio (may vary per plan), & our Home Is Connected Smart Home Package. Seller offering closing cost assistance to qualified buyers. Builder warranty included. See agent for details. Make it your next home by scheduling an appointment with a New Home Specialist today. Due to variations amongst computer monitors, actual colors may vary. Pictures, photographs, colors, features, and sizes are for illustration purposes only and will vary from the homes as built. Photos may include digital staging. Square footage and dimensions are approximate. Buyer should conduct his or her own investigation of the present and future availability of school districts and school assignments. *Taxes are estimated. Buyer to verify all information.
-
4BEDS
-
0.2ACRES
-
2BATHS
-
11/2 BATHS
-
1,991SQFT
-
$169$/SQFT
School Information
Description
Welcome to the Belhaven at Lone Oaks Farm in Cleveland. This two-story plan features a gracious primary bedroom upstairs with a walk-in-closet and spacious bathroom. The second level also features three secondary bedrooms with an additional bathroom. Enjoy the convenience of having washer and dryer hookups upstairs. The main level has a flex room that could be used as a study or designated formal dining area as well as a powder room located directly off the foyer. This floorplan offers open concept living, with the expansive great room looking over the modern kitchen. Windows and doors at the back of the home bathe the kitchen area in natural sunlight. The kitchen is an entertainer's dream with a sleek island that features countertop seating. It also features a spacious pantry with plenty of room for grocery items. This home offers 9ft Ceilings on first floor, Shaker style cabinetry, Solid Surface Countertops with 4in backsplash, Stainless Steel appliances by Whirlpool, Moen Chrome plumbing fixtures with Anti-scald shower valves, Mohawk flooring, LED lighting throughout, Architectural Shingles, Concrete rear patio (may vary per plan), & our Home Is Connected Smart Home Package. Seller offering closing cost assistance to qualified buyers. Builder warranty included. See agent for details. Make it your next home by scheduling an appointment with a New Home Specialist today. Due to variations amongst computer monitors, actual colors may vary. Pictures, photographs, colors, features, and sizes are for illustration purposes only and will vary from the homes as built. Photos may include digital staging. Square footage and dimensions are approximate. Buyer should conduct his or her own investigation of the present and future availability of school districts and school assignments. *Taxes are estimated. Buyer to verify all information.
Related Properties
4365 Scenic Meadow Drive Ne Cleveland, TN 37323
Property Description
Architectural Style Contemporary Attached Garage YN Yes Carport YN No Construction Materials BrickShingle SidingStoneVinyl Siding Exterior Features Other Fencing [] Foundation Details Slab Garage YN Yes Lot Features [] Other Structures [] Parking Features Garage Door OpenerKitchen Level Patio And Porch Features DeckPatioPorchPorch - Covered Pool Features [] Roof Shingle Roof Shingle Yes Structure Type [] View [] View YN No Waterfront Features [] Waterfront YN No
Accessibility Features [] Appliances RefrigeratorMicrowaveFree-Standing Electric RangeElectric Water HeaterDisposalDishwasher Basement [] Basement YN No Building Area Total 1991 Cooling Central AirElectric Cooling YN Yes Fireplace Features ElectricGreat Room Fireplace YN Yes Fireplaces Total 1 Flooring CarpetVinyl Heating CentralElectric Heating YN Yes Interior Features Double VanityEat-in KitchenGranite CountersHigh CeilingsOpen FloorplanPantryTub/shower ComboWalk-In Closet(s) Laundry Features Electric Dryer HookupGas Dryer HookupLaundry RoomWasher Hookup Levels Two Rooms Office (First Level) Great Room (First Level) Primary Bedroom (Second Level) Bedroom (Second Level) Bedroom (Second Level) Bedroom (Second Level) Window Features Insulated Windows
Additional Parcels YN No Association Amenities [] Association Fee 350 Association Fee Frequency Annually Association YN2 Yes Auction YN2 No Community Features [] Grazing Permits BLMYN Yes Grazing Permits Private YN No Green Energy Efficient [] Green Energy Generation [] Green Sustainability [] Green Water Conservation [] Listing Terms CashConventionalFHAVA Loan New Construction YN Yes Other Equipment [] Property Sub Type Single Family Residence Security Features Smoke Detector(s) Senior Community YN No Sewer Public Sewer Special Listing Conditions [] Tax Annual Amount 1221.43 Utilities Cable AvailableElectricity AvailablePhone AvailableUnderground Utilities Utilities Underground Utilities Yes Water Source Public

Listing information © 2026 The Multiple Listing Service of Chattanooga, Inc.
Listing courtesy of DHI Inc: 865-338-5674.