Description
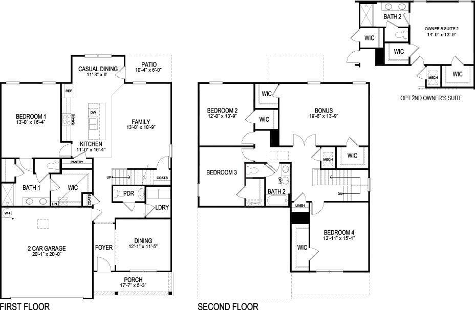
NEW CONSTRUCTION. Welcome to the Salem floorplan at Sweet Briar in Ooltewah. This is one of our more popular floorplans. The main floor features a formal dining, laundry, and powder room. The kitchen and living areas are open concept. The kitchen also features a breakfast nook, pantry, and an island with countertop seating. The breakfast nook overlooks a patio. This space is perfect for entertaining. Additionally, the primary bedroom is on the main floor. It features a walk-in closet and a private bathroom. Upstairs are three additional bedrooms with walk-in closets. The bedrooms share a full bathroom. There is also a spacious bonus room, providing you with more space to work or play. Contact us about the Salem today! The tradition Series Features include 9ft Ceilings on first floor, Shaker style cabinetry, Solid Surface Countertops with 4in backsplash, Stainless Steel appliances by Whirlpool, Moen Chrome plumbing fixtures with Anti-scald shower valves, Mohawk flooring, LED lighting throughout, Architectural Shingles, Concrete rear patio (may vary per plan), & our Home Is Connected Smart Home Package. Seller offering closing cost assistance to qualified buyers. Builder warranty included. See agent for details. Due to variations amongst computer monitors, actual colors may vary. Pictures, photographs, colors, features, and sizes are for illustration purposes only and will vary from the homes as built. Photos may include digital staging. Square footage and dimensions are approximate. Buyer should conduct his or her own investigation of the present and future availability of school districts and school assignments. *Taxes are estimated. Buyer to verify all information.
-
5BEDS
-
0.17ACRES
-
3BATHS
-
11/2 BATHS
-
2,618SQFT
-
$168$/SQFT
School Information
Description
NEW CONSTRUCTION. Welcome to the Salem floorplan at Sweet Briar in Ooltewah. This is one of our more popular floorplans. The main floor features a formal dining, laundry, and powder room. The kitchen and living areas are open concept. The kitchen also features a breakfast nook, pantry, and an island with countertop seating. The breakfast nook overlooks a patio. This space is perfect for entertaining. Additionally, the primary bedroom is on the main floor. It features a walk-in closet and a private bathroom. Upstairs are three additional bedrooms with walk-in closets. The bedrooms share a full bathroom. There is also a spacious bonus room, providing you with more space to work or play. Contact us about the Salem today! The tradition Series Features include 9ft Ceilings on first floor, Shaker style cabinetry, Solid Surface Countertops with 4in backsplash, Stainless Steel appliances by Whirlpool, Moen Chrome plumbing fixtures with Anti-scald shower valves, Mohawk flooring, LED lighting throughout, Architectural Shingles, Concrete rear patio (may vary per plan), & our Home Is Connected Smart Home Package. Seller offering closing cost assistance to qualified buyers. Builder warranty included. See agent for details. Due to variations amongst computer monitors, actual colors may vary. Pictures, photographs, colors, features, and sizes are for illustration purposes only and will vary from the homes as built. Photos may include digital staging. Square footage and dimensions are approximate. Buyer should conduct his or her own investigation of the present and future availability of school districts and school assignments. *Taxes are estimated. Buyer to verify all information.
8513 Mulberry Lane Ooltewah, TN 37363
Property Description
Architectural Style Contemporary Attached Garage YN Yes Carport YN No Construction Materials BrickVinyl Siding Exterior Features None Fencing [] Foundation Details Slab Garage YN Yes Lot Features LevelSplit Possible Other Structures [] Parking Features Garage Door OpenerKitchen Level Patio And Porch Features DeckPatioPorchPorch - Covered Pool Features [] Roof Shingle Roof Shingle Yes Structure Type Free Standing Building View [] View YN No Waterfront Features [] Waterfront YN No
Accessibility Features [] Appliances Tankless Water HeaterRefrigeratorMicrowaveGas Water HeaterFree-Standing Gas RangeDishwasher Basement [] Basement YN No Building Area Total 2618 Cooling Central Air Cooling YN Yes Fireplace Features Gas LogLiving Room Fireplace YN Yes Fireplaces Total 1 Flooring CarpetVinyl Heating CentralNatural Gas Heating YN Yes Interior Features Eat-in KitchenEn SuiteGranite CountersHigh CeilingsPantryPrimary DownstairsSeparate Dining RoomTub/shower ComboWalk-In Closet(s) Laundry Features Electric Dryer HookupGas Dryer HookupLaundry RoomWasher Hookup Levels Two Rooms Dining Room (First Level) Family Room (First Level) Other Primary Bedroom (First Level) Bedroom (Second Level) Bedroom (Second Level) Bedroom (Second Level) Bonus Room (Second Level) Security Features Security System Yes Window Features Insulated WindowsVinyl FramesWindow Treatments
Additional Parcels YN No Association Amenities [] Association Fee 500 Association Fee Frequency Annually Association YN2 Yes Auction YN2 No Community Features [] Grazing Permits BLMYN Yes Grazing Permits Private YN No Green Energy Efficient [] Green Energy Generation [] Green Sustainability [] Green Water Conservation [] Listing Terms CashConventionalFHAVA Loan New Construction YN Yes Other Equipment [] Property Sub Type Single Family Residence Security Features Security SystemSmoke Detector(s) Senior Community YN No Sewer Public Sewer Special Listing Conditions [] Structure Type Free Standing Building Yes Tax Annual Amount 2296.36 Utilities Cable AvailableElectricity AvailablePhone AvailableSewer ConnectedUnderground Utilities Utilities Sewer Connected Yes Utilities Underground Utilities Yes Water Source Public

Listing information © 2026 The Multiple Listing Service of Chattanooga, Inc.
Listing courtesy of DHI Inc: 865-338-5674.